ABOUT

文化建築社は、1948年に創業し、様々な建築設計をおこなってきました。
「文化」の種類には、生活、学問、芸術、思想、様式など多種多様あります。私たちはお客様により創造された文化を、建築という形で共に造りあげていきたいと考えています。

SERVICE

お客様と初期段階から意志の共有を図るため3次元で作図を行い、各段階で建物の全体像をお客様にご提示し、デザインや空間ボリュームを共有します。

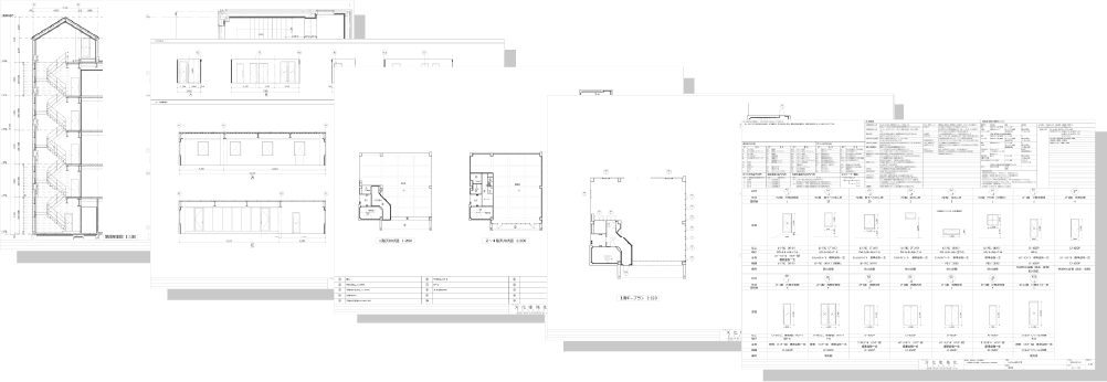
BIMによる作図を行っています。
BIMとはBuilding(建物を)Information(情報で)Modeling(立体表現する)の略称で、超簡潔に言えば建設する前にコンピューター上に建物を造りあげる構築システムです。
従来のCAD(コンピューター上での2次元作図)とは違い、線の集合体で図面を表現する概念では無く、壁や柱等の様々な部材に情報を持たせることにより、建物をわかりやすく「見える化」し、コミュニケーションや理解度の向上を図り、完成後も建物のライフサイクルを通じた情報の利用に役立ちます。

  • BIMモデル工事前

    BIMモデル(設計時、工事着工前)

  • BIM構造モデル

    BIM構造モデル

  • 矢印
  • 完成時

    完成時(ドローン撮影)

  • BIMモデル工事前

    BIMモデル(設計時、工事着工前)

  • BIM構造モデル

    BIM構造モデル

  • 矢印
  • 完成時

    完成時(ドローン撮影)

事務所ビル
事務所ビル
事務所ビル
事務所ビル

3Dモデル、図面、表等が一つのデータになっているため、図面の一部を変更すれば全ての3Dモデル、図面、表等が自動修正される。そのため作図や修正が容易となり、従来の2D図面に比べ、早い段階で事業者との意思の共有が可能となり、より感覚的に判断することが出来ます。